



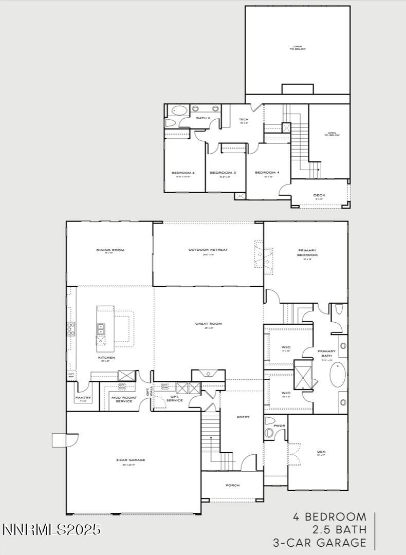
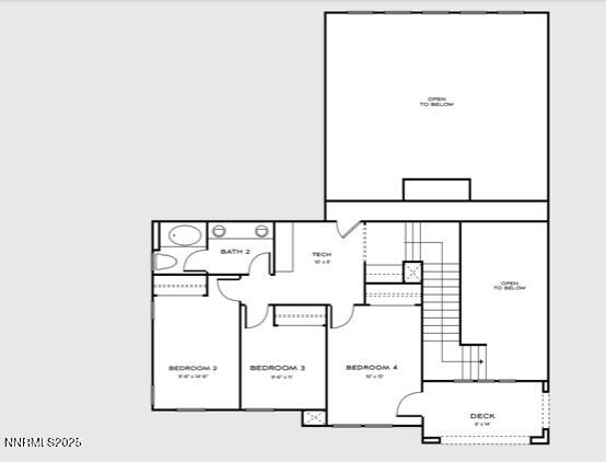
Welcome to The Promontory Plan 2 Collection at Quest Two, sited on a private 1-acre parcel with spectacular views of the Sierra Nevada and Peavine Mountain Ranges. This 3600+ sf new construction home showcases the perfect blend of mountain modern architecture and timeless luxury. Expansive windows frame breathtaking views, filling the open-concept living spaces with natural light. Entertain guests in the oversized entertainer's kitchen, or settle on the covered patio complete with outdoor fireplace for a relaxing evening. Every detail, from the soaring ceilings to the hand-selected finishes, reflects sophistication and comfort. Act now to be able to select the final finishes on this home, scheduled to be complete near the end of the year. Located close to amazing outdoor recreation and ski areas; 20 minutes to Truckee, 30 minutes to Lake Tahoe. Close to amenities and 15 minutes from downtown Reno. Excellent schools. Buyers and buyers' agent to verify all data, including but limited to taxes, CIC fees, etc. Property taxes shown are based only on the land.
| 2 months ago | Price changed to $1,828,039 | |
| 2 months ago | Listing updated with changes from the MLS® | |
| 6 months ago | Status changed to Active | |
| a year ago | Listing first seen on site |
Compare listings
Compare
Did you know? You can invite friends and family to your search. They can join your search, rate and discuss listings with you.